PAR A. - "Cœur du village",Broc Competition
- Office: PAR Architecture
- Location: Broc, Gruyère, Switzerland
- Year project: 2024
- Type: Competition project 
- Program: School complex
- Team:
               Leonardo Grogg
               Liliana Pinto
               Mário Rodrigues
               Milène Masson 
               Tiago Reis 

- Image:
               Alter Image​​​​​​​

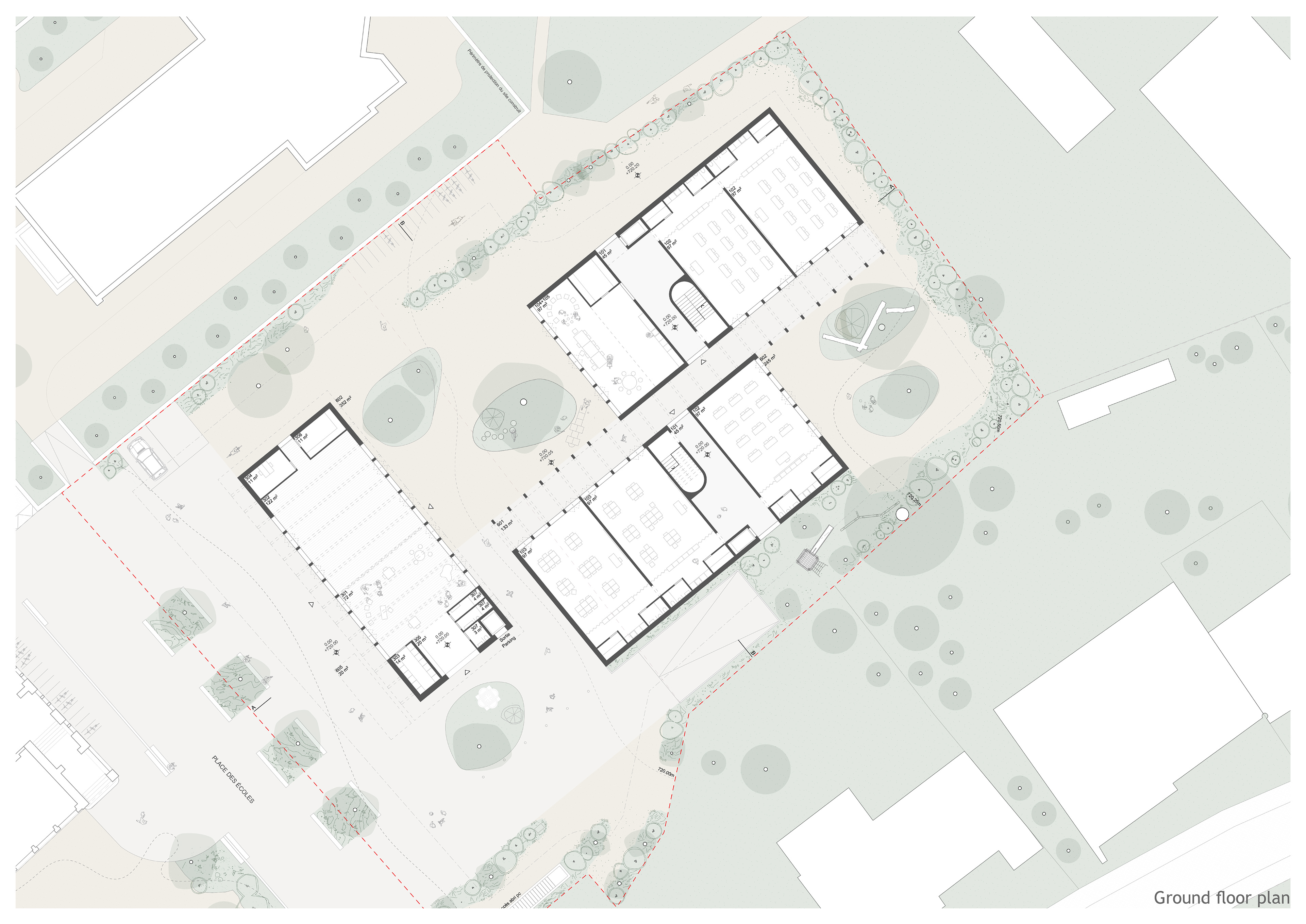
The Broc primary school extension village center new public square. interconnected open spaces enhance mobility. a pavilion-like public structure housing the community hall after-school care services, and two staggered school buildings.
The buildings are designed to integrate with the local landscape and village heritage, using low heights, vernacular materials, and transparency.
innovative landscape approach, soil permeability. pedestrian pathways intimacy, blending the village the surrounding countryside. preserves existing trees.
architectural concept bioclimatic natural materials simple construction techniques. bio-sourced insulation, triple-glazed windows, shading solutions regulate temperature and reduce energy use.
natural light and ventilation, ventilation. local wood sustainable materials. geothermal probes, underfloor heating, and photovoltaic panels.
This project not only enhances biodiversity but also strengthens the village’s connection to its natural surroundings, making it a sustainable and resilient design for the future.
This project not only enhances biodiversity but also strengthens the village’s connection to its natural surroundings, making it a sustainable and resilient design for the future.

You may also like

Back to Top